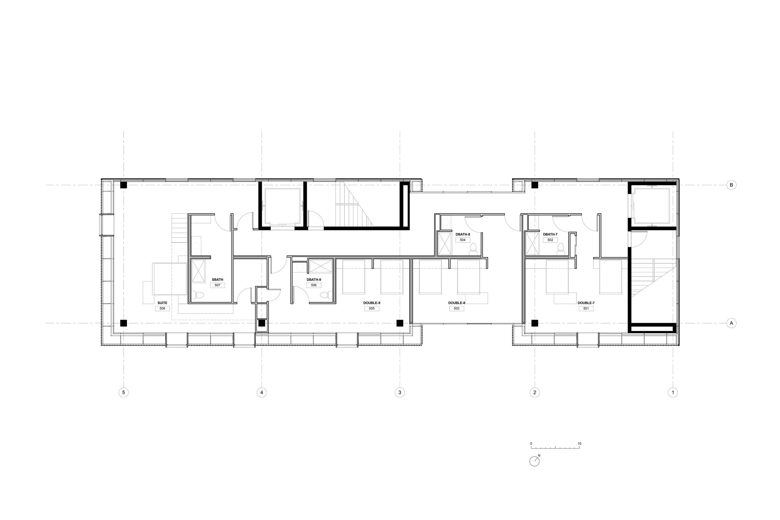
The hotel stands five stories tall on North Main Street, Blacksburg, VA.  Its 20 rooms are pushed to the perimeter, arranged along the south side of single loaded corridors to receive light throughout the day. The light is filtered through a do
       
     
Hallway (30%22 JPG).jpg
       
     
BedWideAngle(12%22).jpg
       
     
4. two windows (JPG 12x18).jpg
       
     
3. facade (JPG 12x18).jpg
       
     
no baseboard (JPG 8x12)).jpg
       
     
F. column meets floor (JPG 6x9).jpg
       
     
SITE (12%22 JPG).jpg
       
     
SITE PLAN (JPG 4x6).jpg
       
     
Sheet - A102 - BASEMENT FLOOR.jpg
       
     
Sheet - A103 - GROUND FLOOR.jpg
       
     
Sheet - A104 - FLOOR 2,3,4.jpg
       
     
Sheet - A105 - FLOOR 5.jpg
       
     
Sheet - A107 - ROOF PLAN.jpg
       
     
Sheet - A401 - WALL SECTION.jpg
       
     
Assembly (JPG 11x17).jpg
       
     
sketch 5.jpg
       
     
 The hotel stands five stories tall on North Main Street, Blacksburg, VA.  Its 20 rooms are pushed to the perimeter, arranged along the south side of single loaded corridors to receive light throughout the day. The light is filtered through a do
       
     

The hotel stands five stories tall on North Main Street, Blacksburg, VA.  Its 20 rooms are pushed to the perimeter, arranged along the south side of single loaded corridors to receive light throughout the day. The light is filtered through a double wall system constructed of steel, wood, and glass. Thin cedar members fastened in vertical orientation and placed with relentless repetition make up the outermost layer of the double wall. The repetitive members are spaced in such a way to screen light, casting shadows onto the inner curtain wall assembly of acid etched translucent glass panels. Shadows and silhouettes show on the surface of the glass panels but explicit details of what lies beyond them are not revealed. This offers guests privacy from the public without sacrificing daylighting. At night the hotel glows like a paper lantern as the glass works in reverse, absorbing artificial light from interior fixtures and projecting it out to the street. Both the exterior screen layer and the inner curtain wall layer are supported by a cage like structure of hollow structural steel tube members lying between them. The steel cage like structure gives the wall depth and also provides the neccessarry structure to house protruding “window boxes” in which guests can sit in.   The double wall system and its ability to manipulate light gives the hotel lively tectonic qualities that change with angle of view and daylight condition.

Hallway (30%22 JPG).jpg
       
     
BedWideAngle(12%22).jpg
       
     
4. two windows (JPG 12x18).jpg
       
     
3. facade (JPG 12x18).jpg
       
     
no baseboard (JPG 8x12)).jpg
       
     
F. column meets floor (JPG 6x9).jpg
       
     
SITE (12%22 JPG).jpg
       
     
SITE PLAN (JPG 4x6).jpg
       
     
Sheet - A102 - BASEMENT FLOOR.jpg
       
     
Sheet - A103 - GROUND FLOOR.jpg
       
     
Sheet - A104 - FLOOR 2,3,4.jpg
       
     
Sheet - A105 - FLOOR 5.jpg
       
     
Sheet - A107 - ROOF PLAN.jpg
       
     
Sheet - A401 - WALL SECTION.jpg
       
     
Assembly (JPG 11x17).jpg
       
     
sketch 5.jpg